






















Available
3LDK Property Hachioji City Tokyo
Loading...
Est. Total (incl. fees): $255,988
4 views
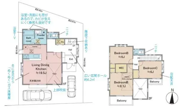
This 3LDK wooden house, constructed in 2010, provides a comfortable living space with a total floor area of 101.64 square meters set on a 140.06 square meter plot. The property is conveniently located within a 13-minute walk from the nearest train station, enhancing accessibility for daily commutes....
Property details
YEAR BUILT
2010
Bedrooms
3
BUILDING MATERIAL
Wooden
BUILDING SIZE
101.64 sqm
LOT SIZE
140.06 sqm
LAND OWNERSHIP
Freehold
ZONING
Residential
FLOOR
2
PARKING SPACE
Available
MINPAKU LIKELIHOOD
Unlikely
Nearest station
Airport
Onsen
Supermarket
Conveni
Hospital / Clinic
Floorplan

Investment calculator
Estimate rental yield, mortgage repayments and break-even timeline. Sign in to unlock.
Loading...
Est. Total (incl. fees): $255,988
4 views
Available
...
