






Available
Hiroshima Prefecture Hiroshima City 4LDK Property
Loading...
Est. Total (incl. fees): $147,010
5 views
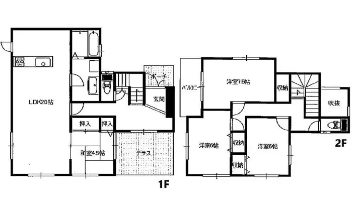
This well-maintained 4LDK wooden-frame residence, constructed in September 2012, offers a total floor area of 116.96 square meters on a generous 174.64 square meter lot. Situated in BanKita, Asaminami-ku, Hiroshima City, the property is equipped with a comprehensive all-electric system, designed for...
Property details
YEAR BUILT
2012
Bedrooms
4
BUILDING MATERIAL
Wooden
BUILDING SIZE
116.96 sqm
LOT SIZE
174.64 sqm
LAND OWNERSHIP
Freehold
ZONING
Residential
FLOOR
2
PARKING SPACE
—
MINPAKU LIKELIHOOD
Unsure
Nearest station
Airport
Onsen
Supermarket
Conveni
Hospital / Clinic
Floorplan

Source:View original listing
Loading...
Est. Total (incl. fees): $147,010
5 views
Available
...
