Available
8SDK property Kashihara City Nara Prefecture
Loading...
Est. Total (incl. fees): $103,963
3 views
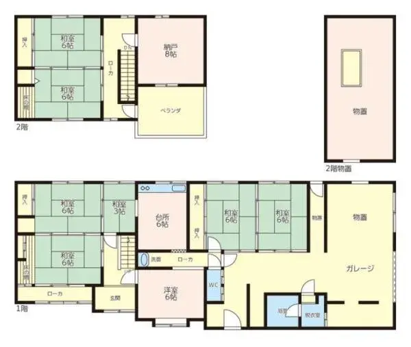
This property is a detached wooden house, constructed in 1973, situated in Kashihara City, Nara Prefecture. It features an expansive 8SDK layout, designed to offer versatile living spaces with a total floor area of 158.13 square meters. The generous lot size of 244.62 square meters provides outdoor...
Property details
YEAR BUILT
1973
🔴
Pre-1981 seismic standard
Bedrooms
8
BUILDING MATERIAL
Wooden
BUILDING SIZE
158.13 sqm
LOT SIZE
244.62 sqm
LAND OWNERSHIP
Freehold
ZONING
Residential
FLOOR
2
PARKING SPACE
—
MINPAKU LIKELIHOOD
Unsure
Nearest station
Airport
Onsen
Supermarket
Conveni
Hospital / Clinic
Floorplan

Source:View original listing
Loading...
Est. Total (incl. fees): $103,963
3 views
Available
...
