



Available
6DK Property Himeji City Hyogo Prefecture
Loading...
Est. Total (incl. fees): $33,095
11 views
1 favorite
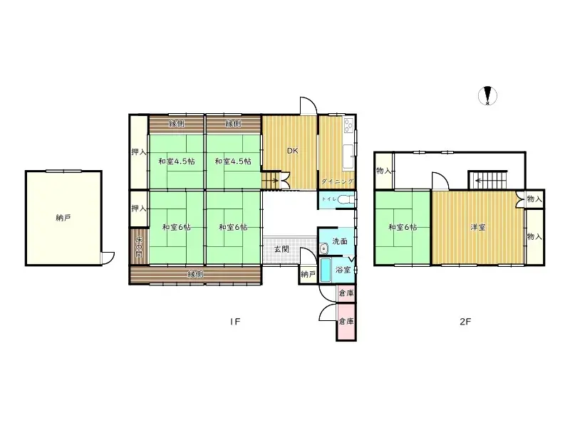
This 6DK detached house is situated in Shikitocho Obara, Himeji City, Hyogo Prefecture, offering a substantial residential footprint. The property encompasses a building area of 129.90 square meters, providing ample interior space, complemented by a large lot area of 310.56 square meters, which incl...
Property details
YEAR BUILT
1968
🔴
Pre-1981 seismic standard
Bedrooms
6
BUILDING MATERIAL
Wooden
BUILDING SIZE
129.9 sqm
LOT SIZE
310.56 sqm
LAND OWNERSHIP
Freehold
ZONING
Residential
FLOOR
2
PARKING SPACE
—
MINPAKU LIKELIHOOD
Unsure
Nearest station
Airport
Onsen
Supermarket
Conveni
Hospital / Clinic
Floorplan

Source:View original listing
Loading...
Est. Total (incl. fees): $33,095
11 views
1 favorite
Available
...
