


Available
8SDK Property Himeji City Hyogo Prefecture
Loading...
Est. Total (incl. fees): $132,661
3 views
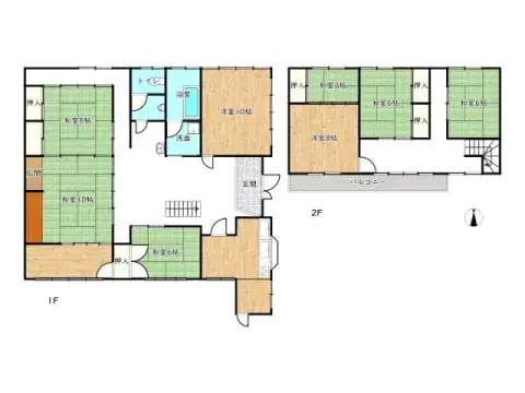
This 8SDK wooden property, constructed in 1974, is located in Himeji City, Hyogo Prefecture. It features a spacious building area of 228.61 square meters and a generous land area of 570.86 square meters. The layout offers ample room for multi-generational living or potential for varied uses, accommo...
Property details
YEAR BUILT
1974
🔴
Pre-1981 seismic standard
Bedrooms
8
BUILDING MATERIAL
Wooden
BUILDING SIZE
228.61 sqm
LOT SIZE
570.86 sqm
LAND OWNERSHIP
Freehold
ZONING
Residential
FLOOR
2
PARKING SPACE
—
MINPAKU LIKELIHOOD
Unsure
Nearest station
Airport
Onsen
Supermarket
Conveni
Hospital / Clinic
Floorplan

Source:View original listing
Loading...
Est. Total (incl. fees): $132,661
3 views
Available
...
