

Available
8DK Property Himeji City Hyogo Prefecture
Loading...
Est. Total (incl. fees): $47,021
3 views
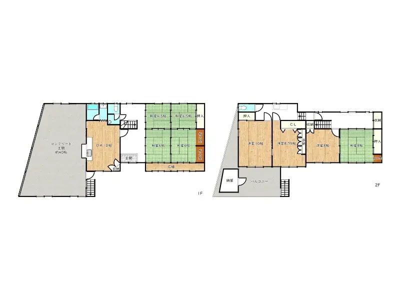
This property features a spacious 8DK layout within a wooden house constructed in 1935. It encompasses a building area of 143.78 square meters on a substantial lot of 375.67 square meters. The premises offer parking space for two vehicles, contributing to resident convenience and accessibility. Reg...
Property details
YEAR BUILT
1935
🔴
Pre-1981 seismic standard
Bedrooms
8
BUILDING MATERIAL
Wooden
BUILDING SIZE
143.78 sqm
LOT SIZE
375.67 sqm
LAND OWNERSHIP
Freehold
ZONING
Residential
FLOOR
2
PARKING SPACE
—
MINPAKU LIKELIHOOD
Unsure
Nearest station
Airport
Onsen
Supermarket
Conveni
Hospital / Clinic
Floorplan

Source:View original listing
Loading...
Est. Total (incl. fees): $47,021
3 views
Available
...
