


Available
7LDK Himeji City Hyogo Prefecture Property
Loading...
Est. Total (incl. fees): $33,095
5 views
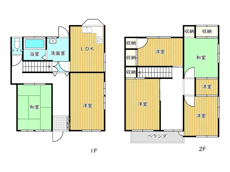
This 7LDK detached house, constructed in 1979 from wood, is located in Miyamata, Katsuhara-ku, Himeji City, Hyogo Prefecture. It features a building footage of 181.76 square meters on a 112.68 square meter lot, providing a substantial and adaptable living environment. Situated within a tranquil resi...
Property details
YEAR BUILT
1979
🔴
Pre-1981 seismic standard
Bedrooms
7
BUILDING MATERIAL
Wooden
BUILDING SIZE
181.76 sqm
LOT SIZE
112.68 sqm
LAND OWNERSHIP
Freehold
ZONING
Residential
FLOOR
2
PARKING SPACE
—
MINPAKU LIKELIHOOD
Unsure
Nearest station
Airport
Onsen
Supermarket
Conveni
Hospital / Clinic
Floorplan

Source:View original listing
Loading...
Est. Total (incl. fees): $33,095
5 views
Available
...
