


Available
4DK Property Higashiosaka City Osaka Prefecture
Loading...
Est. Total (incl. fees): $256,060
4 views
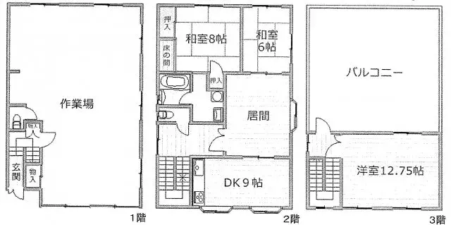
This 4DK property is located in Higashiosaka City, Osaka Prefecture, offering a practical living arrangement. The residence features a total building area of 185.86 square meters situated on a 119.02 square meter lot. Constructed in 1986, the building benefits from steel-frame construction, known fo...
Property details
YEAR BUILT
1986
Bedrooms
4
BUILDING MATERIAL
Steel frame construction
BUILDING SIZE
185.86 sqm
LOT SIZE
119.02 sqm
LAND OWNERSHIP
Freehold
ZONING
Residential
FLOOR
3
PARKING SPACE
—
MINPAKU LIKELIHOOD
Unsure
Nearest station
Airport
Onsen
Supermarket
Conveni
Hospital / Clinic
Floorplan

Source:View original listing
Loading...
Est. Total (incl. fees): $256,060
4 views
Available
...
