




Available
Osaka Prefecture Higashiosaka City 2LDK Property
Loading...
Est. Total (incl. fees): $37,962
7 views
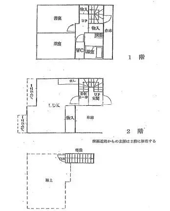
This 2LDK property, constructed in 1977, is situated in Higashiosaka City, Osaka Prefecture. The robust structure is built with reinforced concrete, providing a durable and reliable living space with a building area of 67 square meters on a 61-square-meter land plot. This residence is currently occu...
Property details
YEAR BUILT
1977
🔴
Pre-1981 seismic standard
Bedrooms
2
BUILDING MATERIAL
Reinforced concrete construction
BUILDING SIZE
67 sqm
LOT SIZE
61 sqm
LAND OWNERSHIP
Freehold
ZONING
Residential
FLOOR
2
PARKING SPACE
—
MINPAKU LIKELIHOOD
Unlikely
Nearest station
Airport
Onsen
Supermarket
Conveni
Hospital / Clinic
Floorplan

Source:View original listing
Loading...
Est. Total (incl. fees): $37,962
7 views
Available
...
