












Available
Osaka Prefecture Higashiosaka City 3 Bedroom Property
Loading...
Est. Total (incl. fees): $55,226
4 views
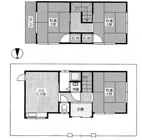
This 1976-built, wooden 3DK property offers a practical layout suitable for various living arrangements. It encompasses a building area of 57.62 square meters on a land area of 47.9 square meters, providing a compact yet functional residential footprint. The construction type is traditional wooden s...
Property details
YEAR BUILT
1976
🔴
Pre-1981 seismic standard
Bedrooms
3
BUILDING MATERIAL
Wooden
BUILDING SIZE
57.62 sqm
LOT SIZE
47.9 sqm
LAND OWNERSHIP
Freehold
ZONING
Residential
FLOOR
2
PARKING SPACE
—
MINPAKU LIKELIHOOD
Unlikely
Nearest station
Airport
Onsen
Supermarket
Conveni
Hospital / Clinic
Floorplan

Source:View original listing
Loading...
Est. Total (incl. fees): $55,226
4 views
Available
...
