




























Available
4LDK Property Higashiosaka City Osaka Prefecture
Loading...
Est. Total (incl. fees): $147,010
4 views
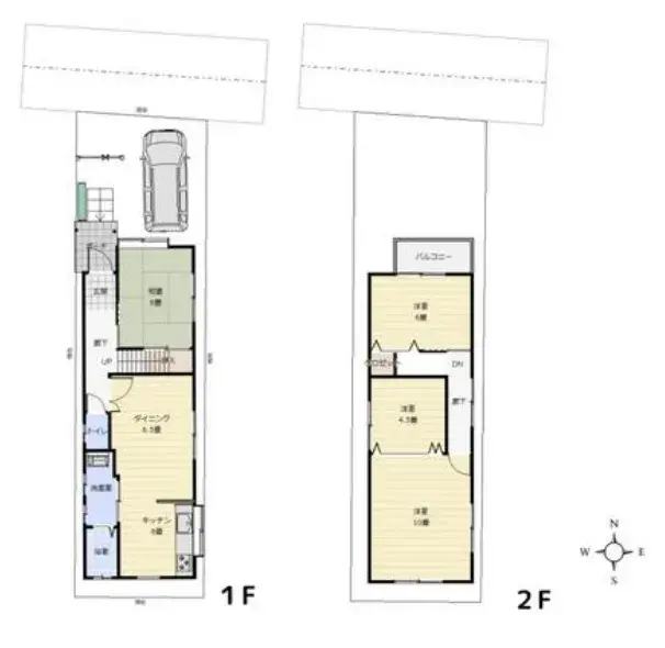
This 4LDK detached house is located in Higashiosaka City, Osaka Prefecture. The property was constructed in 1982 and comprises a building with a total floor area of 82.35 square meters, set on a land plot of 80.02 square meters. Its wooden construction ensures a traditional Japanese architectural st...
Property details
YEAR BUILT
1982
Bedrooms
4
BUILDING MATERIAL
Wooden
BUILDING SIZE
82.35 sqm
LOT SIZE
80.02 sqm
LAND OWNERSHIP
Freehold
ZONING
Residential
FLOOR
2
PARKING SPACE
—
MINPAKU LIKELIHOOD
Unsure
Nearest station
Airport
Onsen
Supermarket
Conveni
Hospital / Clinic
Floorplan

Source:View original listing
Loading...
Est. Total (incl. fees): $147,010
4 views
Available
...
