
Available
3DK Property Higashiosaka City Osaka Prefecture
Loading...
Est. Total (incl. fees): $50,498
6 views
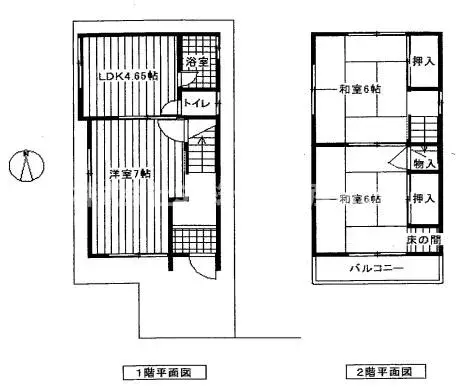
This 3DK detached wooden house, constructed in 1978, is situated in Hanazono Honcho, Higashiosaka City, Osaka Prefecture. The property encompasses a building footprint of 49.98 square meters, positioned on a land area of 42.56 square meters. A key practical feature is its south-facing orientation, w...
Property details
YEAR BUILT
1978
🔴
Pre-1981 seismic standard
Bedrooms
3
BUILDING MATERIAL
Wooden
BUILDING SIZE
49.98 sqm
LOT SIZE
42.56 sqm
LAND OWNERSHIP
Freehold
ZONING
Residential
FLOOR
2
PARKING SPACE
—
MINPAKU LIKELIHOOD
Unlikely
Nearest station
Airport
Onsen
Supermarket
Conveni
Hospital / Clinic
Floorplan

Source:View original listing
Loading...
Est. Total (incl. fees): $50,498
6 views
Available
...
