










Available
5SLDK Property Kawachinagano City Osaka Prefecture
Loading...
Est. Total (incl. fees): $53,975
5 views
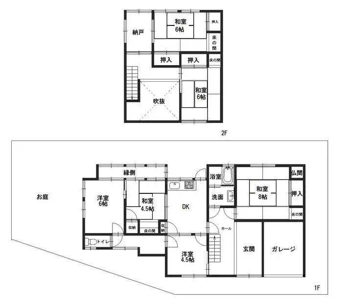
This 5SLDK detached house is situated in Suehirocho, Kawachinagano City, Osaka Prefecture. Constructed in 1968, this wooden-structured residence spans 145.77 square meters of building area on a 176.85 square meter land lot. The property's design ensures optimal natural light penetration throughout t...
Property details
YEAR BUILT
1968
🔴
Pre-1981 seismic standard
Bedrooms
5
BUILDING MATERIAL
Wooden
BUILDING SIZE
145.77 sqm
LOT SIZE
176.85 sqm
LAND OWNERSHIP
Freehold
ZONING
Residential
FLOOR
2
PARKING SPACE
—
MINPAKU LIKELIHOOD
Unlikely
Nearest station
Airport
Onsen
Supermarket
Conveni
Hospital / Clinic
Floorplan

Source:View original listing
Loading...
Est. Total (incl. fees): $53,975
5 views
Available
...
