













Available
6LDK Property Tomitabayashi City Osaka Prefecture
Loading...
Est. Total (incl. fees): $218,753
5 views
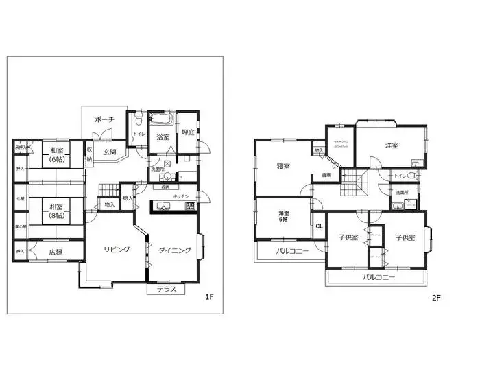
This 1997-built wooden residence, custom-designed by Daiwa House, offers a spacious 6LDK layout. It presents a total floor area of 216.22 square meters, situated on a generous 208.75 square meter lot. The interior has been consistently well-maintained, presenting an appealing living environment. Pra...
Property details
YEAR BUILT
1997
Bedrooms
6
BUILDING MATERIAL
Wooden
BUILDING SIZE
216.22 sqm
LOT SIZE
208.75 sqm
LAND OWNERSHIP
Freehold
ZONING
Residential
FLOOR
2
PARKING SPACE
—
MINPAKU LIKELIHOOD
Unsure
Nearest station
Airport
Onsen
Supermarket
Conveni
Hospital / Clinic
Floorplan

Source:View original listing
Loading...
Est. Total (incl. fees): $218,753
5 views
Available
...
