





Available
3LDK Sakai City, Osaka Prefecture
Loading...
Est. Total (incl. fees): $290,497
2 views
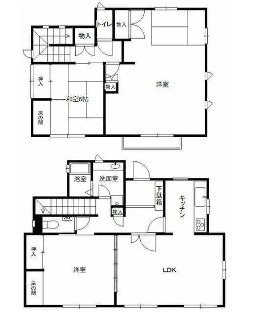
This 3LDK property in Sakai City, Osaka Prefecture, features a 133.07 sqm building on a 184.53 sqm lot, built in 1987. It offers practical living space. Constructed with a steel frame, the residence includes three bedrooms and one bathroom. Located in a quiet residential area, it provides a peacefu...
Property details
YEAR BUILT
1987
Bedrooms
3
BUILDING MATERIAL
Steel frame construction
BUILDING SIZE
133.07 sqm
LOT SIZE
184.53 sqm
LAND OWNERSHIP
Freehold
ZONING
Residential
FLOOR
2
PARKING SPACE
—
MINPAKU LIKELIHOOD
Unsure
Nearest station
Airport
Onsen
Supermarket
Conveni
Hospital / Clinic
Floorplan

Source:View original listing
Loading...
Est. Total (incl. fees): $290,497
2 views
Available
...
