




















Available
[3LDK Property] Sakai City Osaka Prefecture
Loading...
Est. Total (incl. fees): $112,573
1 view
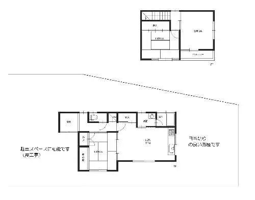
This 3LDK detached house, constructed with a wooden frame in 1983, offers a total floor area of 72.9 square meters situated on a substantial land plot measuring 190.93 square meters. The property is located in Takamatsu, Higashi Ward, Sakai City, Osaka Prefecture, an established residential area kno...
Property details
YEAR BUILT
1983
Bedrooms
3
BUILDING MATERIAL
Wooden
BUILDING SIZE
72.9 sqm
LOT SIZE
190.93 sqm
LAND OWNERSHIP
Freehold
ZONING
Residential
FLOOR
2
PARKING SPACE
—
MINPAKU LIKELIHOOD
Unsure
Nearest station
Airport
Onsen
Supermarket
Conveni
Hospital / Clinic
Floorplan

Source:View original listing
Loading...
Est. Total (incl. fees): $112,573
1 view
Available
...
