











Available
4LDK Property Kameoka City Kyoto Prefecture
Loading...
Est. Total (incl. fees): $204,404
3 views
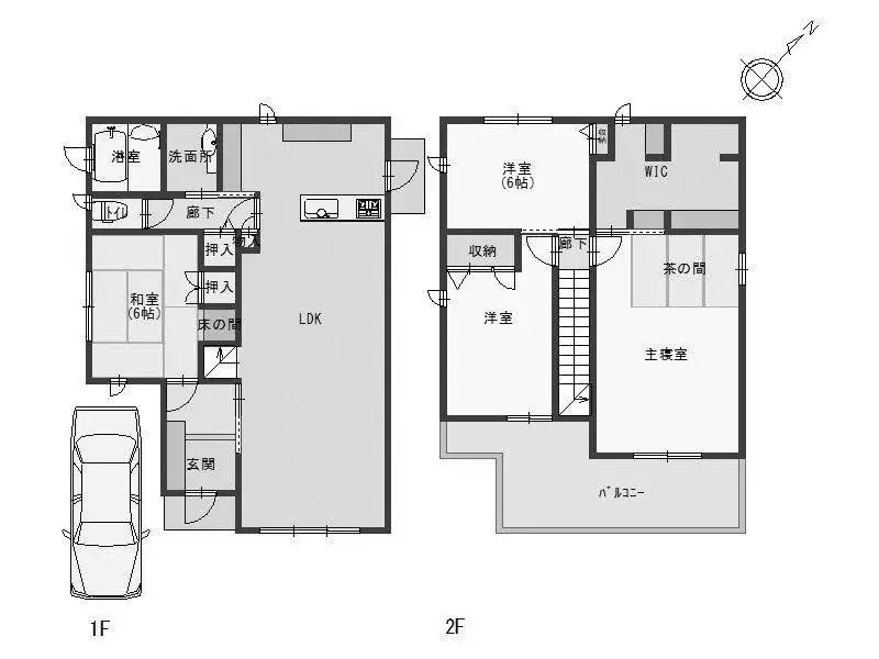
This is a 4LDK wooden detached house located in Kameoka City, Kyoto Prefecture, constructed in February 2002. The property was built by a reputable house manufacturer, ensuring quality and durability in its construction. It features a building footprint of 130 square meters, providing significant in...
Property details
YEAR BUILT
2002
Bedrooms
4
BUILDING MATERIAL
Wooden
BUILDING SIZE
130 sqm
LOT SIZE
171.12 sqm
LAND OWNERSHIP
Freehold
ZONING
Residential
FLOOR
2
PARKING SPACE
—
MINPAKU LIKELIHOOD
Unlikely
Nearest station
Airport
Onsen
Supermarket
Conveni
Hospital / Clinic
Floorplan

Source:View original listing
Loading...
Est. Total (incl. fees): $204,404
3 views
Available
...
