
Available
[15DK Property] Toba City Mie Prefecture
Loading...
Est. Total (incl. fees): $53,975
17 views
1 favorite
Situated in the tranquil Osatsu district of Toba City, Mie Prefecture, this property offers a substantial 15DK layout housed within a reinforced concrete building constructed in 1976. With a total building footprint of 533.05 square meters on a spacious 380.76 square meter land plot, this asset prov...
Property details
YEAR BUILT
1976
🔴
Pre-1981 seismic standard
Bedrooms
15
BUILDING MATERIAL
Reinforced concrete construction
BUILDING SIZE
533.05 sqm
LOT SIZE
380.76 sqm
LAND OWNERSHIP
Freehold
ZONING
Commercial
FLOOR
3
PARKING SPACE
—
MINPAKU LIKELIHOOD
Likely
Nearest station
Airport
Onsen
Supermarket
Conveni
Hospital / Clinic
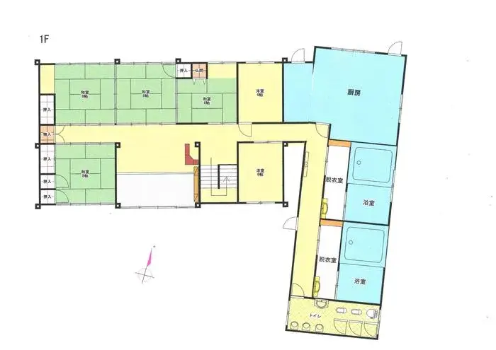
Floorplan

Source:View original listing
Loading...
Est. Total (incl. fees): $53,975
17 views
1 favorite
Available
...
