












Available
2DK Property Okazaki City Aichi Prefecture
Loading...
Est. Total (incl. fees): $290,497
3 views
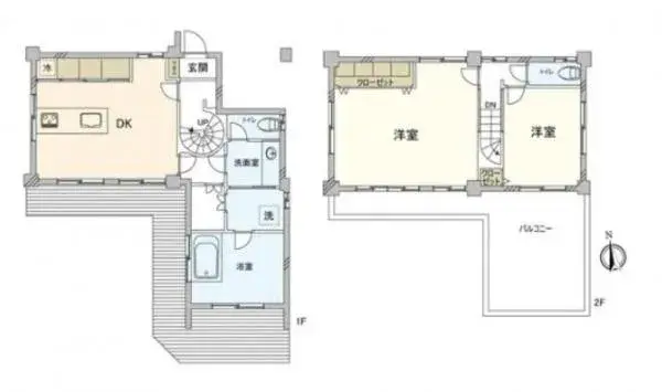
This 2DK detached house is located in Okazaki City, Aichi Prefecture, offering convenient access to local amenities and transportation. The property is situated an 11-minute walk from Meitetsu Takemura Station, providing a practical commute. Constructed in 1976, this residence features a steel frame...
Property details
YEAR BUILT
1976
🔴
Pre-1981 seismic standard
Bedrooms
2
BUILDING MATERIAL
Steel frame construction
BUILDING SIZE
104.92 sqm
LOT SIZE
175.2 sqm
LAND OWNERSHIP
Freehold
ZONING
Residential
FLOOR
2
PARKING SPACE
—
MINPAKU LIKELIHOOD
Unsure
Nearest station
Airport
Onsen
Supermarket
Conveni
Hospital / Clinic
Floorplan

Source:View original listing
Loading...
Est. Total (incl. fees): $290,497
3 views
Available
...
