














Available
Shizuoka Prefecture Kannami-cho 6SLDK Property
Loading...
Est. Total (incl. fees): $139,835
2 views
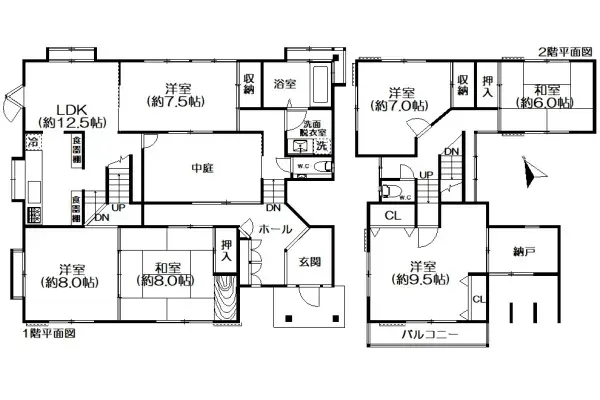
Constructed in 1991, this 6SLDK wooden house provides a substantial living space of 158.43 square meters, designed for comfort and practicality. The property is situated on an expansive 305.48 square meter lot, offering significant outdoor utility and potential for landscaping or a garden. Located i...
Property details
YEAR BUILT
1991
Bedrooms
6
BUILDING MATERIAL
Wooden
BUILDING SIZE
158.43 sqm
LOT SIZE
305.48 sqm
LAND OWNERSHIP
Freehold
ZONING
Residential
FLOOR
2
PARKING SPACE
—
MINPAKU LIKELIHOOD
Unsure
Nearest station
Airport
Onsen
Supermarket
Conveni
Hospital / Clinic
Floorplan

Source:View original listing
Loading...
Est. Total (incl. fees): $139,835
2 views
Available
...
