












Available
4LDK Property Atami City Shizuoka Prefecture
Loading...
Est. Total (incl. fees): $270,409
6 views
1 favorite
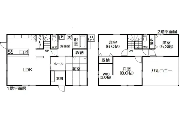
This robust 4LDK residence, constructed in 2019, boasts a durable reinforced concrete structure, indicative of modern building standards. The property encompasses a spacious total floor area of 118.45 square meters, set upon a generous land plot measuring 292.97 square meters. Strategically position...
Property details
YEAR BUILT
2019
Bedrooms
4
BUILDING MATERIAL
Reinforced concrete construction
BUILDING SIZE
118.45 sqm
LOT SIZE
292.97 sqm
LAND OWNERSHIP
Freehold
ZONING
Residential
FLOOR
2
PARKING SPACE
—
MINPAKU LIKELIHOOD
Unlikely
Nearest station
Airport
Onsen
Supermarket
Conveni
Hospital / Clinic
Floorplan

Source:View original listing
Loading...
Est. Total (incl. fees): $270,409
6 views
1 favorite
Available
...
