











Available
6LDK Property Atami City Shizuoka Prefecture
Loading...
Est. Total (incl. fees): $866,014
11 views
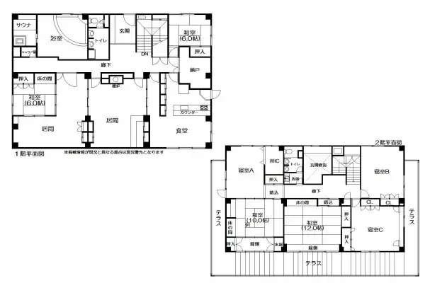
This property presents a substantial 6LDK residence constructed in 1979 with reinforced concrete. It features a generous lot area of 1154.18 square meters and a building area of 364.5 square meters, providing extensive space for various functions. The robust reinforced concrete structure contributes...
Property details
YEAR BUILT
1979
🔴
Pre-1981 seismic standard
Bedrooms
6
BUILDING MATERIAL
Reinforced concrete construction
BUILDING SIZE
364.5 sqm
LOT SIZE
1154.18 sqm
LAND OWNERSHIP
Freehold
ZONING
Residential
FLOOR
2
PARKING SPACE
—
MINPAKU LIKELIHOOD
Unlikely
Nearest station
Airport
Onsen
Supermarket
Conveni
Hospital / Clinic
Floorplan

Source:View original listing
Loading...
Est. Total (incl. fees): $866,014
11 views
Available
...
