























Available
5SLDK Katsuyama City Fukui Prefecture
Loading...
Est. Total (incl. fees): $141,198
2 views
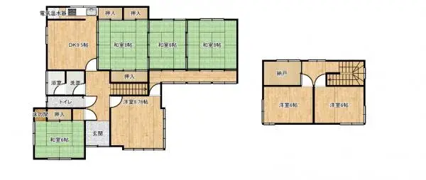
This 5SLDK detached house is situated in Asahimachi, Katsuyama City, Fukui Prefecture. It offers a building area of 161.32 square meters on a spacious lot of 426.15 square meters. Built in 1976 with wooden construction, the property is currently undergoing renovation. Significant updates include se...
Property details
YEAR BUILT
1976
🔴
Pre-1981 seismic standard
Bedrooms
5
BUILDING MATERIAL
Wooden
BUILDING SIZE
161.32 sqm
LOT SIZE
426.15 sqm
LAND OWNERSHIP
Freehold
ZONING
Residential
FLOOR
2
PARKING SPACE
—
MINPAKU LIKELIHOOD
Unsure
Nearest station
Airport
Onsen
Supermarket
Conveni
Hospital / Clinic
Floorplan

Source:View original listing
Loading...
Est. Total (incl. fees): $141,198
2 views
Available
...
