


















Available
7LDK Property Tagami-machi Niigata
Loading...
Est. Total (incl. fees): $73,080
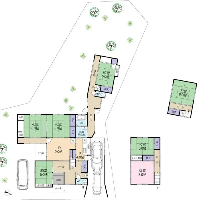
This 7LDK wooden house is situated in Tagami-machi, Minamikanbara-gun, Niigata Prefecture, offering a serene and expansive living environment surrounded by nature. Constructed in 1971, the residence boasts a generous floor area of 207.12 square meters, encompassing seven bedrooms, a living room, din...
Property details
YEAR BUILT
1971
🔴
Pre-1981 seismic standard
Bedrooms
7
BUILDING MATERIAL
Wooden
BUILDING SIZE
207.12 sqm
LOT SIZE
403 sqm
LAND OWNERSHIP
Freehold
ZONING
Residential
FLOOR
2
PARKING SPACE
—
MINPAKU LIKELIHOOD
Unlikely
Nearest station
Airport
Onsen
Supermarket
Conveni
Hospital / Clinic
Floorplan

Source:View original listing
Loading...
Est. Total (incl. fees): $73,080
Available
...
