


















Available
4LDK Property Agano City Niigata Prefecture
Loading...
Est. Total (incl. fees): $132,661
1 favorite
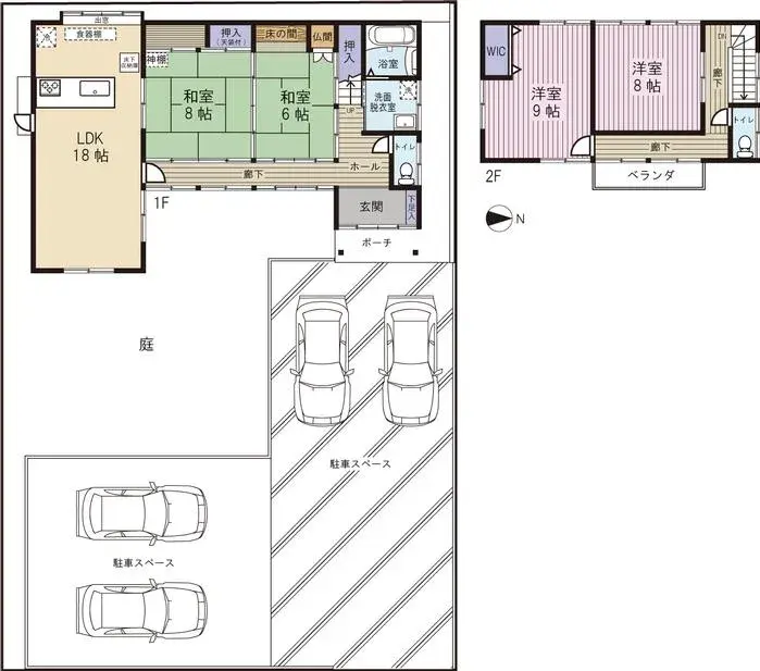
This 4LDK wooden house, constructed in 1987, is situated in Kitahonmachi, Agano City. The property encompasses a land area of 330.7 square meters and a building footprint of 124.35 square meters. It provides a functional 4-bedroom layout, including an expansive 18-tatami mat living, dining, and kitc...
Property details
YEAR BUILT
1987
Bedrooms
4
BUILDING MATERIAL
Wooden
BUILDING SIZE
124.35 sqm
LOT SIZE
330.7 sqm
LAND OWNERSHIP
Freehold
ZONING
Residential
FLOOR
2
PARKING SPACE
—
MINPAKU LIKELIHOOD
Unsure
Nearest station
Airport
Onsen
Supermarket
Conveni
Hospital / Clinic
Floorplan

Source:View original listing
Loading...
Est. Total (incl. fees): $132,661
1 favorite
Available
...
