


















Available
7LDK Shibata City Niigata Prefecture
Loading...
Est. Total (incl. fees): $168,533
5 views
1 favorite
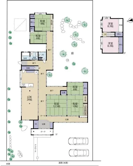
This wooden 7LDK detached house is situated in Shibata City, Niigata Prefecture. Constructed in 1978, the property features a substantial building area of 237.07 square meters set on an expansive lot measuring 685.19 square meters. The large 26-tatami mat living, dining, and kitchen area serves as a...
Property details
YEAR BUILT
1978
🔴
Pre-1981 seismic standard
Bedrooms
7
BUILDING MATERIAL
Wooden
BUILDING SIZE
237.07 sqm
LOT SIZE
685.19 sqm
LAND OWNERSHIP
Freehold
ZONING
Residential
FLOOR
2
PARKING SPACE
—
MINPAKU LIKELIHOOD
Unsure
Nearest station
Airport
Onsen
Supermarket
Conveni
Hospital / Clinic
Floorplan

Source:View original listing
Loading...
Est. Total (incl. fees): $168,533
5 views
1 favorite
Available
...
