
















Available
[10LDK Property] Nagaoka City, Niigata Prefecture
Loading...
Est. Total (incl. fees): $141,270
8 views
2 favorites
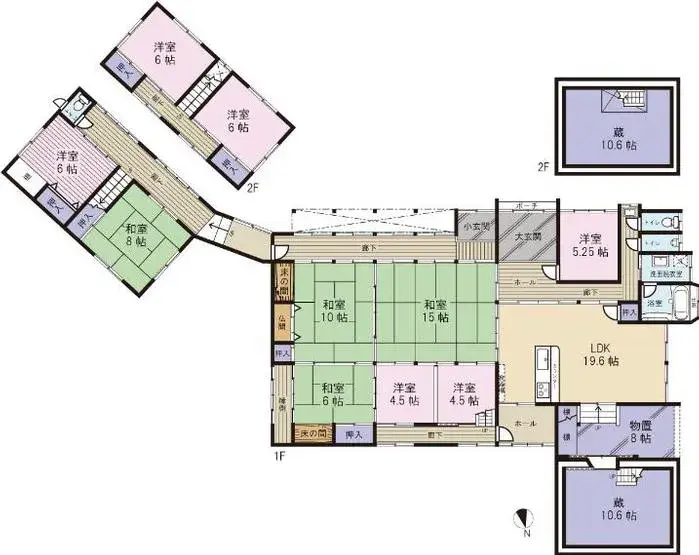
Located in Teradomari Nozumi, Nagaoka City, Niigata Prefecture, this wooden traditional house was constructed in 1916. It offers a substantial 10LDK floor plan, encompassing a total building footage of 309.57 square meters situated on an expansive lot measuring 852.57 square meters. The property is...
Property details
YEAR BUILT
1916
🔴
Pre-1981 seismic standard
Bedrooms
10
BUILDING MATERIAL
Wooden
BUILDING SIZE
309.57 sqm
LOT SIZE
852.57 sqm
LAND OWNERSHIP
Freehold
ZONING
Residential
FLOOR
2
PARKING SPACE
—
MINPAKU LIKELIHOOD
Unsure
Nearest station
Airport
Onsen
Supermarket
Conveni
Hospital / Clinic
Floorplan

Source:View original listing
Loading...
Est. Total (incl. fees): $141,270
8 views
2 favorites
Available
...
