


















Available
Niigata Prefecture, Niigata City, Nishikan Ward 3DK House
Loading...
Est. Total (incl. fees): $91,050
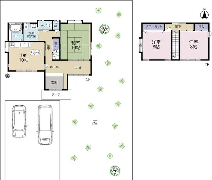
This 3DK wooden house, built in 1995, is located in Nishikan Ward, Niigata City, Niigata Prefecture. The property features a building area of 106.41 sqm on a spacious lot of 362.06 sqm, providing ample living space. Significant renovations were completed in March 2025, including bathroom coating, ex...
Property details
YEAR BUILT
1995
Bedrooms
3
BUILDING MATERIAL
Wooden
BUILDING SIZE
106.41 sqm
LOT SIZE
362.06 sqm
LAND OWNERSHIP
Freehold
ZONING
Residential
FLOOR
2
PARKING SPACE
—
MINPAKU LIKELIHOOD
Unsure
Nearest station
Airport
Onsen
Supermarket
Conveni
Hospital / Clinic
Floorplan

Source:View original listing
Loading...
Est. Total (incl. fees): $91,050
Available
...
