



















Available
5DK Akihaku, Niigata City, Niigata Prefecture
Loading...
Est. Total (incl. fees): $51,889
74 views
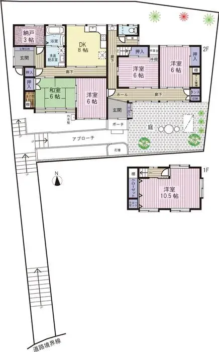
This 5DK wooden house, constructed in 1963, offers a total building area of 131.37 square meters on a 271.07 square meter lot. The property benefits from excellent southern exposure, ensuring ample natural light throughout the day. It features a private garden complete with a pizza oven, set amidst...
Property details
YEAR BUILT
1963
🔴
Pre-1981 seismic standard
Bedrooms
5
BUILDING MATERIAL
Wooden
BUILDING SIZE
131.37 sqm
LOT SIZE
271.07 sqm
LAND OWNERSHIP
Freehold
ZONING
Residential
FLOOR
2
PARKING SPACE
—
MINPAKU LIKELIHOOD
Unlikely
Nearest station
Airport
Onsen
Supermarket
Conveni
Hospital / Clinic
Floorplan

Source:View original listing
Loading...
Est. Total (incl. fees): $51,889
74 views
Available
...
