

















Available
8DK Niigata City Niigata Prefecture
Loading...
Est. Total (incl. fees): $75,232
3,463 views
10 favorites
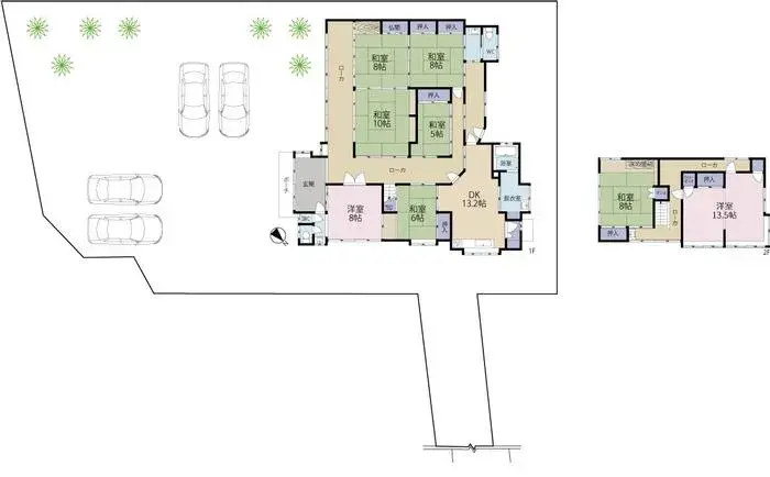
This 8DK wooden detached house, built in 1969, is located in Akihaku, Niigata City. It offers a substantial building area of 231.51 square meters situated on an expansive lot measuring 830.62 square meters (approximately 251 tsubo). The property features ample dedicated parking space for up to five...
Property details
YEAR BUILT
1969
🔴
Pre-1981 seismic standard
Bedrooms
8
BUILDING MATERIAL
Wooden
BUILDING SIZE
231.51 sqm
LOT SIZE
830.62 sqm
LAND OWNERSHIP
Freehold
ZONING
Residential
FLOOR
2
PARKING SPACE
—
MINPAKU LIKELIHOOD
Unsure
Nearest station
Airport
Onsen
Supermarket
Conveni
Hospital / Clinic
Floorplan

Source:View original listing
Loading...
Est. Total (incl. fees): $75,232
3,463 views
10 favorites
Available
...
