




















Available
Niigata Prefecture Niigata City 8LDK Property
Loading...
Est. Total (incl. fees): $168,533
5 views
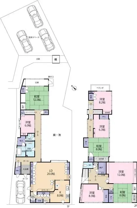
Located in Konan-ku, Niigata City, this 8LDK wooden house, originally built in 1971, underwent significant renovations in September 2023. These updates included the replacement of some water fixtures such as the kitchen, toilet, and vanity, alongside exterior wall refurbishment, ensuring a refreshed...
Property details
YEAR BUILT
1971
🔴
Pre-1981 seismic standard
Bedrooms
8
BUILDING MATERIAL
Wooden
BUILDING SIZE
286.74 sqm
LOT SIZE
340.69 sqm
LAND OWNERSHIP
Freehold
ZONING
Residential
FLOOR
2
PARKING SPACE
—
MINPAKU LIKELIHOOD
Unlikely
Nearest station
Airport
Onsen
Supermarket
Conveni
Hospital / Clinic
Floorplan

Source:View original listing
Loading...
Est. Total (incl. fees): $168,533
5 views
Available
...
