



Available
3SLDK Property Kawasaki City Kanagawa Prefecture
Loading...
Est. Total (incl. fees): $506,579
1 view
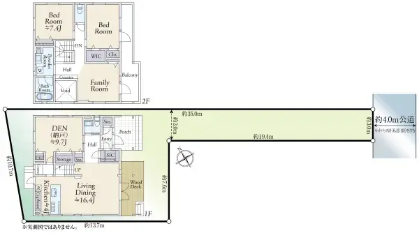
This 3SLDK wooden-frame residence, built in 2009, presents a well-maintained and functional living environment suitable for families. The property is situated on a generous land area of 219.14 square meters, providing significant outdoor space. The total building footprint extends to 138.12 square m...
Property details
YEAR BUILT
2009
Bedrooms
3
BUILDING MATERIAL
Wooden
BUILDING SIZE
138.12 sqm
LOT SIZE
219.14 sqm
LAND OWNERSHIP
Freehold
ZONING
Residential
FLOOR
2
PARKING SPACE
—
MINPAKU LIKELIHOOD
Unsure
Nearest station
Airport
Onsen
Supermarket
Conveni
Hospital / Clinic
Floorplan

Source:View original listing
Loading...
Est. Total (incl. fees): $506,579
1 view
Available
...
