



























Available
Kanagawa Prefecture Yokohama City 4LDK Property
Loading...
Est. Total (incl. fees): $496,535
2 views
1 favorite
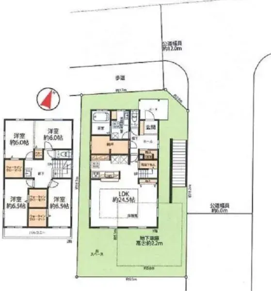
This 4LDK detached house, constructed in 2006, is situated in Konan-dai 6-chome, Konan-ku, Yokohama City, Kanagawa Prefecture. The property spans a generous 168.06 square meter lot, with a steel-frame building covering 163.5 square meters. This construction type offers superior durability and a subs...
Property details
YEAR BUILT
2006
Bedrooms
4
BUILDING MATERIAL
Steel frame construction
BUILDING SIZE
163.5 sqm
LOT SIZE
168.06 sqm
LAND OWNERSHIP
Freehold
ZONING
Residential
FLOOR
2
PARKING SPACE
—
MINPAKU LIKELIHOOD
Unlikely
Nearest station
Airport
Onsen
Supermarket
Conveni
Hospital / Clinic
Floorplan

Source:View original listing
Loading...
Est. Total (incl. fees): $496,535
2 views
1 favorite
Available
...
