




























Available
2LDK Property Machida City Tokyo
Loading...
Est. Total (incl. fees): $91,050
3 views
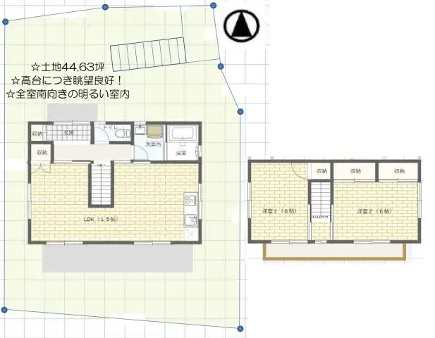
This 2LDK wooden detached house is situated in Machida City, Tokyo, offering a practical residential opportunity. The property spans a generous land area of 147.56 square meters, complemented by a total building footprint of 71.32 square meters. Constructed in 1977, this residence features a functio...
Property details
YEAR BUILT
1977
🔴
Pre-1981 seismic standard
Bedrooms
2
BUILDING MATERIAL
Wooden
BUILDING SIZE
71.32 sqm
LOT SIZE
147.56 sqm
LAND OWNERSHIP
Freehold
ZONING
Residential
FLOOR
2
PARKING SPACE
—
MINPAKU LIKELIHOOD
Unlikely
Nearest station
Airport
Onsen
Supermarket
Conveni
Hospital / Clinic
Floorplan

Source:View original listing
Loading...
Est. Total (incl. fees): $91,050
3 views
Available
...
