




Available
7LDK Property Shinjuku-ku Tokyo
Loading...
Est. Total (incl. fees): $2,143,050
6 views
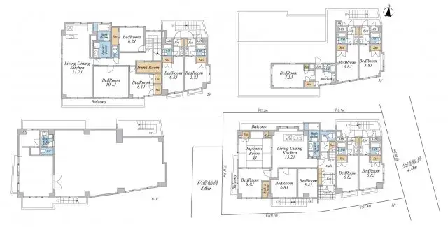
This substantial reinforced concrete property, constructed in 1989, is strategically located in Shimo-Ochiai, Shinjuku-ku, an area known for its urban convenience and comprehensive amenities. The building boasts an impressive area of 439.66 square meters (approximately 132 tsubo), situated on a gene...
Property details
YEAR BUILT
1989
Bedrooms
7
BUILDING MATERIAL
Reinforced concrete construction
BUILDING SIZE
439.66 sqm
LOT SIZE
234.87 sqm
LAND OWNERSHIP
Freehold
ZONING
Residential
FLOOR
3
PARKING SPACE
—
MINPAKU LIKELIHOOD
Unlikely
Nearest station
Airport
Onsen
Supermarket
Conveni
Hospital / Clinic
Floorplan

Source:View original listing
Loading...
Est. Total (incl. fees): $2,143,050
6 views
Available
...
