



























Available
2LDK Sammu City Chiba Prefecture
Loading...
Est. Total (incl. fees): $37,962
49 views
1 favorite
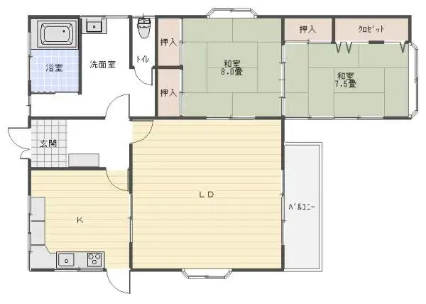
Located in Oki, Sammu City, Chiba Prefecture, this 1988-built single-story wooden house features a 2LDK layout. The expansive 469 sqm (approx. 142 tsubo) lot is a corner plot with three-sided road access, ensuring excellent natural light and openness. It is situated in a lush green environment. The...
Property details
YEAR BUILT
1988
Bedrooms
2
BUILDING MATERIAL
Wooden
BUILDING SIZE
82.81 sqm
LOT SIZE
469 sqm
LAND OWNERSHIP
Freehold
ZONING
Residential
FLOOR
1
PARKING SPACE
—
MINPAKU LIKELIHOOD
Unsure
Nearest station
Airport
Onsen
Supermarket
Conveni
Hospital / Clinic
Floorplan

Source:View original listing
Loading...
Est. Total (incl. fees): $37,962
49 views
1 favorite
Available
...
