





















Available
4K Property Takaharu Town Miyazaki Prefecture
Loading...
Est. Total (incl. fees): $41,459
6 views
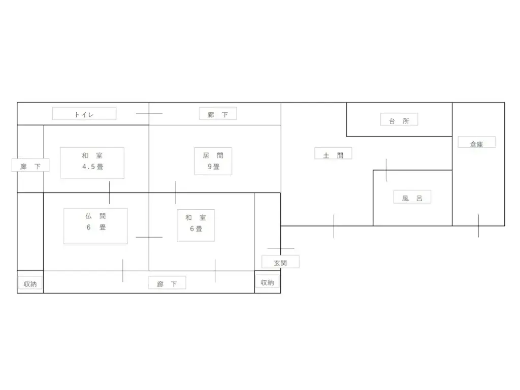
This 4K wooden house is situated in Kamamuta, Takaharu Town, Nishimorokata District, Miyazaki Prefecture. Constructed in 1956, it boasts a substantial building area of 121.39 square meters and rests on a remarkably expansive lot spanning 1326.00 square meters. The layout includes one bathroom, makin...
Property details
YEAR BUILT
1956
🔴
Pre-1981 seismic standard
Bedrooms
4
BUILDING MATERIAL
Wooden
BUILDING SIZE
121.39 sqm
LOT SIZE
1326 sqm
LAND OWNERSHIP
Freehold
ZONING
Residential
FLOOR
—
PARKING SPACE
—
MINPAKU LIKELIHOOD
Unsure
Nearest station
Airport
Onsen
Supermarket
Conveni
Hospital / Clinic
Floorplan

Source:View original listing
Loading...
Est. Total (incl. fees): $41,459
6 views
Available
...
