






















Available
5DK Property Tsukumi City Oita Prefecture
Loading...
Est. Total (incl. fees): $137,611
3 views
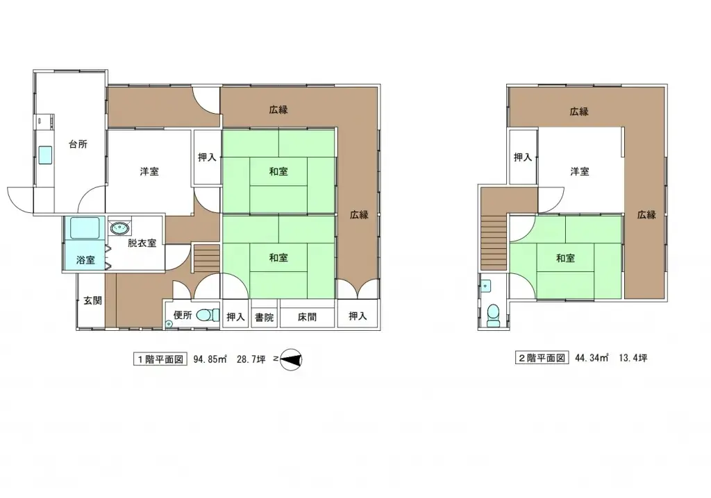
This 5DK wooden house is situated in Tsukumi City, Oita Prefecture, originally constructed in 1966. The property offers a substantial building area of 139.19 square meters and is set on a very generous land plot spanning 684.87 square meters. It features one bathroom, providing essential amenities f...
Property details
YEAR BUILT
1966
🔴
Pre-1981 seismic standard
Bedrooms
5
BUILDING MATERIAL
Wooden
BUILDING SIZE
139.19 sqm
LOT SIZE
684.87 sqm
LAND OWNERSHIP
Freehold
ZONING
Residential
FLOOR
2
PARKING SPACE
—
MINPAKU LIKELIHOOD
Unsure
Nearest station
Airport
Onsen
Supermarket
Conveni
Hospital / Clinic
Floorplan

Source:View original listing
Loading...
Est. Total (incl. fees): $137,611
3 views
Available
...
