













Available
7DK Property Kusu Town Oita Prefecture
Loading...
Est. Total (incl. fees): $20,579
4 views
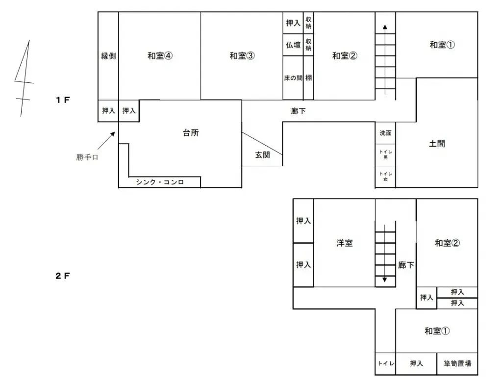
This 7DK wooden house, constructed in 1965, is situated in Oaza Mori, Kusu Town, Kusu District, Oita Prefecture. The property features a substantial building area of 155.18 square meters, set upon a generous lot of 297.52 square meters, providing ample space for residents. The layout includes one fu...
Property details
YEAR BUILT
1965
🔴
Pre-1981 seismic standard
Bedrooms
7
BUILDING MATERIAL
Wooden
BUILDING SIZE
155.18 sqm
LOT SIZE
297.52 sqm
LAND OWNERSHIP
Freehold
ZONING
Residential
FLOOR
2
PARKING SPACE
—
MINPAKU LIKELIHOOD
Unsure
Nearest station
Airport
Onsen
Supermarket
Conveni
Hospital / Clinic
Floorplan

Source:View original listing
Loading...
Est. Total (incl. fees): $20,579
4 views
Available
...
