



Available
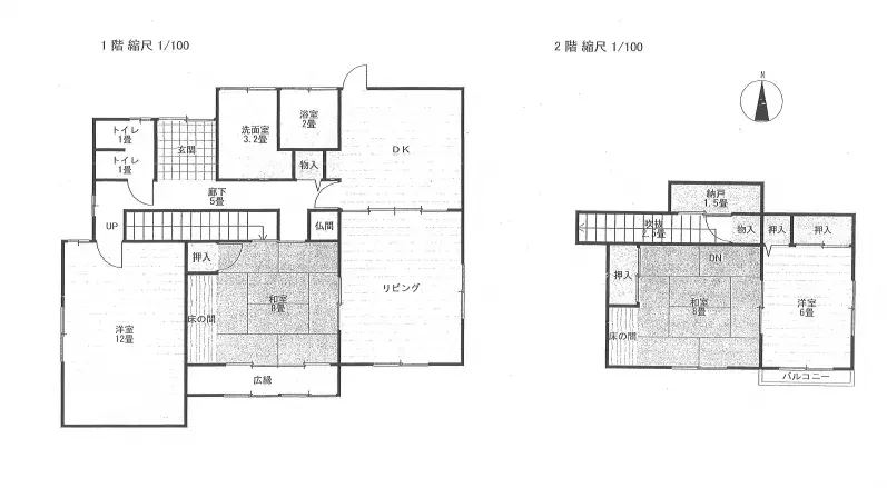
4LDK Arao City Kumamoto Prefecture
Loading...
Est. Total (incl. fees): $48,412
7 views
This property is a meticulously maintained wooden house, expertly constructed in 1984, offering a spacious and highly functional 4LDK floor plan designed for comfortable family living. With a total building area of 144.77 square meters, it provides substantial interior space for everyday activities...
Property details
YEAR BUILT
1984
Bedrooms
4
BUILDING MATERIAL
Wooden
BUILDING SIZE
144.77 sqm
LOT SIZE
336.07 sqm
LAND OWNERSHIP
Freehold
ZONING
Residential
FLOOR
2
PARKING SPACE
—
MINPAKU LIKELIHOOD
Unlikely
Nearest station
Airport
Onsen
Supermarket
Conveni
Hospital / Clinic
Floorplan

Source:View original listing
Loading...
Est. Total (incl. fees): $48,412
7 views
Available
...
