







Available
7DK Property Arao City Kumamoto Prefecture
Loading...
Est. Total (incl. fees): $54,670
3 views
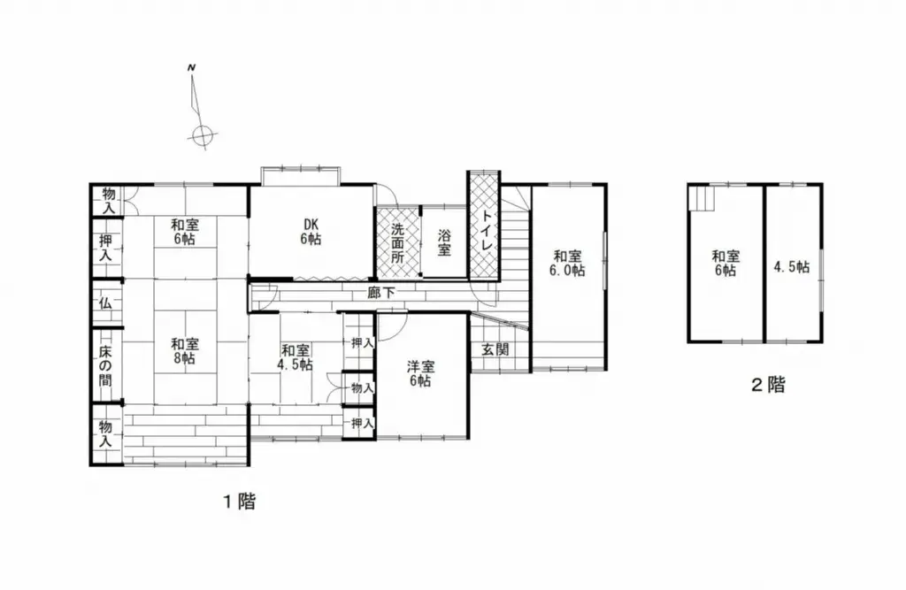
This 7DK detached house is situated in Kamihirayama, Arao City, Kumamoto Prefecture, offering a substantial living area of 104.96 square meters. The property benefits from a remarkably expansive lot, measuring 691.84 square meters, providing significant outdoor space. Built in 1973, this residence f...
Property details
YEAR BUILT
1973
🔴
Pre-1981 seismic standard
Bedrooms
7
BUILDING MATERIAL
Wooden
BUILDING SIZE
104.96 sqm
LOT SIZE
691.84 sqm
LAND OWNERSHIP
Freehold
ZONING
Residential
FLOOR
2
PARKING SPACE
—
MINPAKU LIKELIHOOD
Unsure
Nearest station
Airport
Onsen
Supermarket
Conveni
Hospital / Clinic
Floorplan

Source:View original listing
Loading...
Est. Total (incl. fees): $54,670
3 views
Available
...
