






Available
Nagasaki Prefecture Hirado City 12DK Property
Loading...
Est. Total (incl. fees): $27,532
6 views
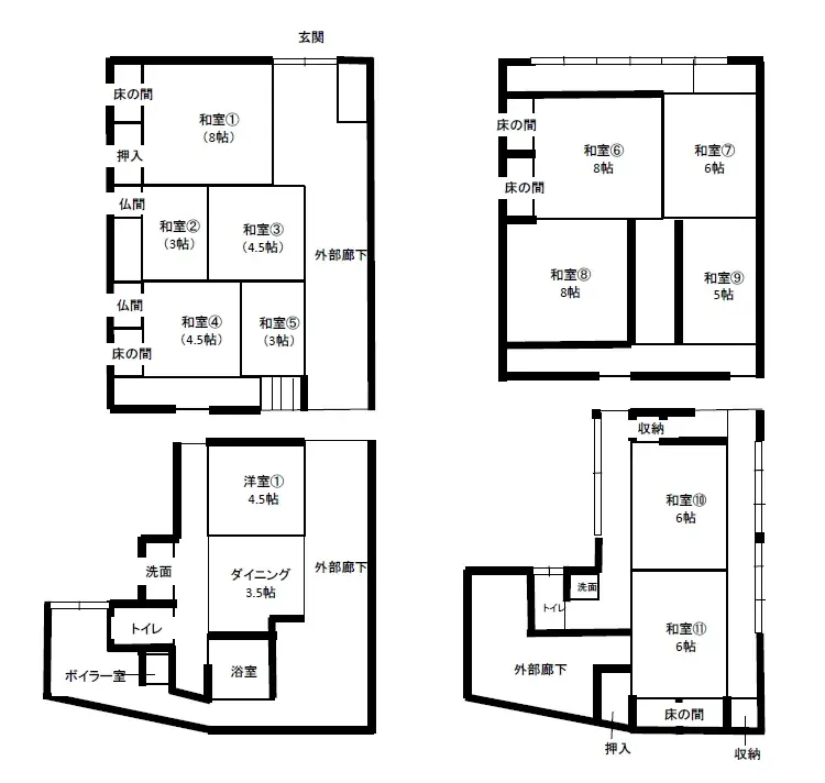
This 12DK wooden property is located in Hirado City, Nagasaki Prefecture. Constructed in 1928, it offers a substantial building area of 289.23 square meters and a land area of 204.93 square meters. The residence is equipped with one bathroom. Its generous 12-room plus dining and kitchen layout provi...
Property details
YEAR BUILT
1928
🔴
Pre-1981 seismic standard
Bedrooms
12
BUILDING MATERIAL
Wooden
BUILDING SIZE
289.23 sqm
LOT SIZE
204.93 sqm
LAND OWNERSHIP
Freehold
ZONING
Residential
FLOOR
—
PARKING SPACE
—
MINPAKU LIKELIHOOD
Unsure
Nearest station
Airport
Onsen
Supermarket
Conveni
Hospital / Clinic
Floorplan

Source:View original listing
Loading...
Est. Total (incl. fees): $27,532
6 views
Available
...
