
Available
3LDK Property Miyawaka City Fukuoka Prefecture
Loading...
Est. Total (incl. fees): $26,142
18 views
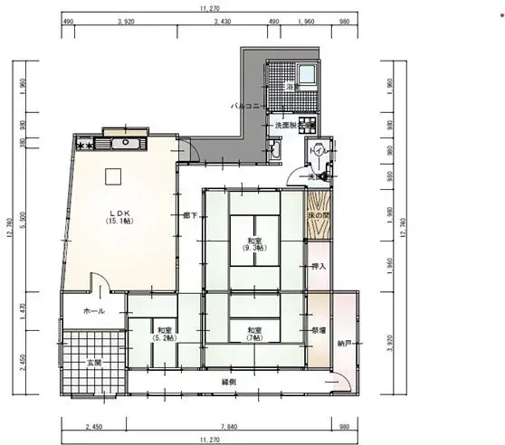
This property is a 3LDK wooden house located in Miyawaka City, Fukuoka Prefecture. Constructed in 1949, it offers a substantial lot area of 242.00 square meters and a total floor area of 102.17 square meters. The robust wooden construction, characteristic of its era, provides a solid foundation for...
Property details
YEAR BUILT
1949
🔴
Pre-1981 seismic standard
Bedrooms
3
BUILDING MATERIAL
Wooden
BUILDING SIZE
102.17 sqm
LOT SIZE
242 sqm
LAND OWNERSHIP
Freehold
ZONING
Residential
FLOOR
1
PARKING SPACE
—
MINPAKU LIKELIHOOD
Unsure
Nearest station
Airport
Onsen
Supermarket
Conveni
Hospital / Clinic
Floorplan

Source:View original listing
Loading...
Est. Total (incl. fees): $26,142
18 views
Available
...
