






Available
5DK Property Saijo City Ehime Prefecture
Loading...
Est. Total (incl. fees): $27,185
3 views
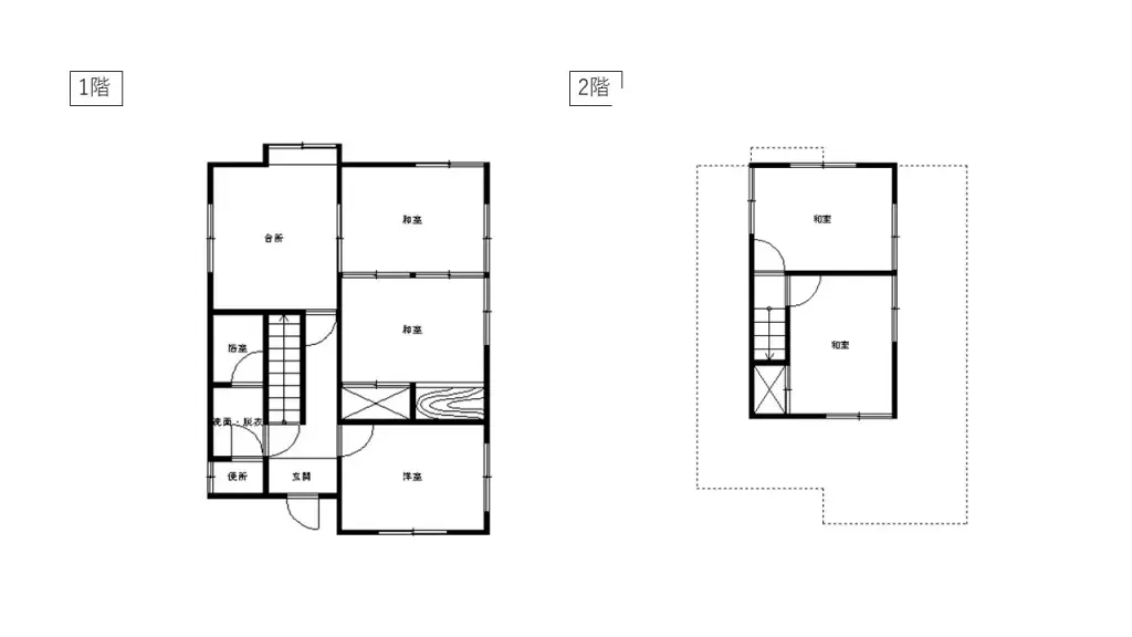
Located in Kokuan, Saijo City, Ehime Prefecture, this 5DK wooden house presents an opportunity for comfortable family living within a tranquil residential setting. The property features a substantial lot area of 157.22 square meters, providing ample outdoor space, complemented by a building footprin...
Property details
YEAR BUILT
Unknown
Bedrooms
5
BUILDING MATERIAL
Wooden
BUILDING SIZE
89.75 sqm
LOT SIZE
157.22 sqm
LAND OWNERSHIP
Freehold
ZONING
Residential
FLOOR
—
PARKING SPACE
—
MINPAKU LIKELIHOOD
Unsure
Nearest station
Airport
Onsen
Supermarket
Conveni
Hospital / Clinic
Floorplan

Source:View original listing
Loading...
Est. Total (incl. fees): $27,185
3 views
Available
...
