








Available
12LDK Property Imabari City Ehime Prefecture
Loading...
Est. Total (incl. fees): $17,450
6 views
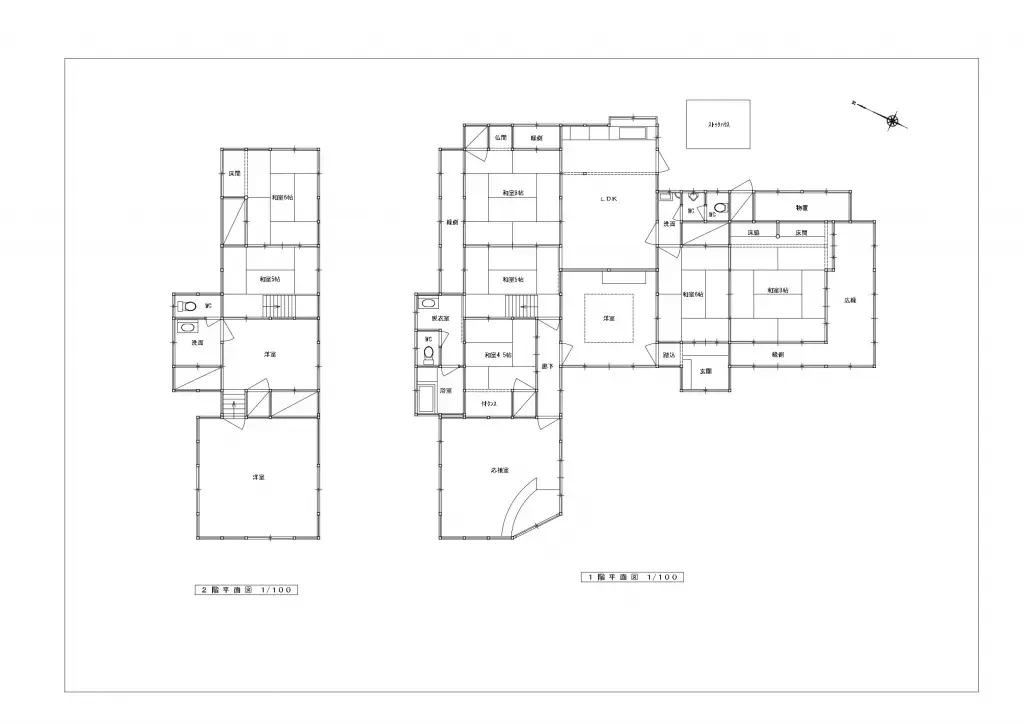
This substantial 12LDK wooden residence is situated in Yoshiumi-cho Honjo, Imabari City, Ehime Prefecture. The property is built on an expansive lot spanning 532.18 square meters, providing considerable outdoor space for various purposes, including gardening or potential expansion. With a total floo...
Property details
YEAR BUILT
Unknown
Bedrooms
12
BUILDING MATERIAL
Wooden
BUILDING SIZE
114.04 sqm
LOT SIZE
532.18 sqm
LAND OWNERSHIP
Freehold
ZONING
Residential
FLOOR
2
PARKING SPACE
—
MINPAKU LIKELIHOOD
Unsure
Nearest station
Airport
Onsen
Supermarket
Conveni
Hospital / Clinic
Floorplan

Source:View original listing
Loading...
Est. Total (incl. fees): $17,450
6 views
Available
...
