





Available
3K Property, Imabari City, Ehime Prefecture
Loading...
Est. Total (incl. fees): $41,459
7 views
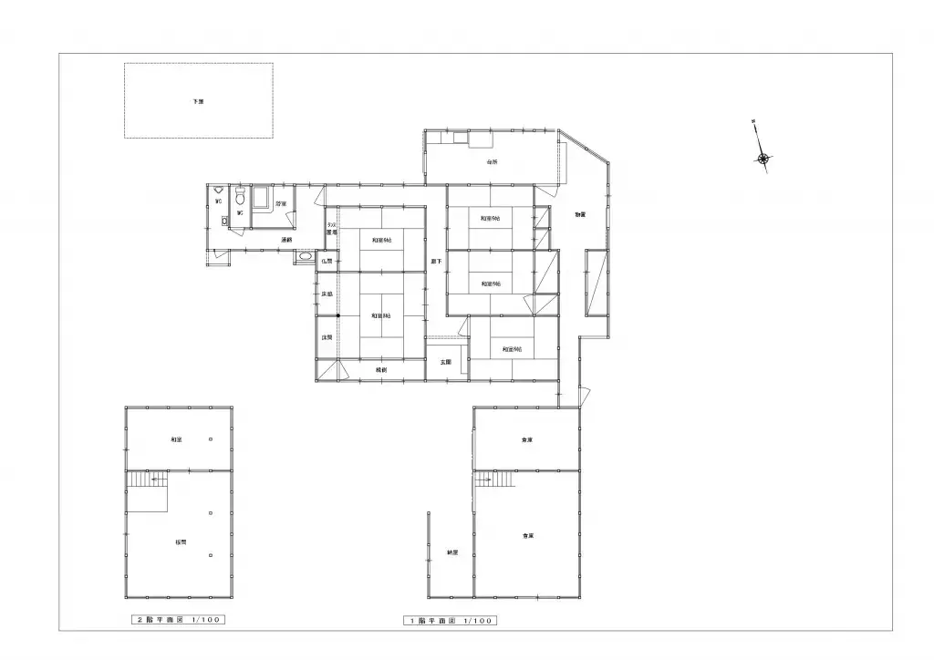
Located in Yoshiumichōnie, Imabari City, Ehime Prefecture, this property features a 3K layout within a wooden structure. It is situated on a substantial plot of 890.84 square meters, offering considerable space for various development or renovation projects. The construction year is unknown, present...
Property details
YEAR BUILT
Unknown
Bedrooms
3
BUILDING MATERIAL
Wooden
BUILDING SIZE
-
LOT SIZE
890.84 sqm
LAND OWNERSHIP
Freehold
ZONING
Residential
FLOOR
1
PARKING SPACE
—
MINPAKU LIKELIHOOD
Unsure
Nearest station
Airport
Onsen
Supermarket
Conveni
Hospital / Clinic
Floorplan

Source:View original listing
Loading...
Est. Total (incl. fees): $41,459
7 views
Available
...
