






Available
3DK Toon City Ehime Prefecture
Loading...
Est. Total (incl. fees): $28,923
3 views
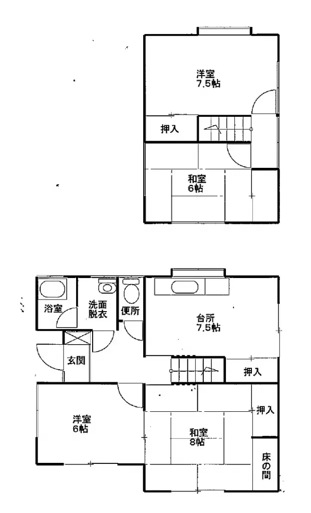
This 3DK detached house is located in Matsusegawa, within Toon City, Ehime Prefecture. It offers a practical layout suitable for individuals or small families. The total building area measures 81.81 square meters, providing well-proportioned interior spaces. Complementing this is a generous lot size...
Property details
YEAR BUILT
Unknown
Bedrooms
3
BUILDING MATERIAL
Wooden
BUILDING SIZE
81.81 sqm
LOT SIZE
116.12 sqm
LAND OWNERSHIP
Freehold
ZONING
Residential
FLOOR
2
PARKING SPACE
—
MINPAKU LIKELIHOOD
Unsure
Nearest station
Airport
Onsen
Supermarket
Conveni
Hospital / Clinic
Floorplan

Source:View original listing
Loading...
Est. Total (incl. fees): $28,923
3 views
Available
...
