









Available
7DK Property Saijo City Ehime Prefecture
Loading...
Est. Total (incl. fees): $62,319
2 views
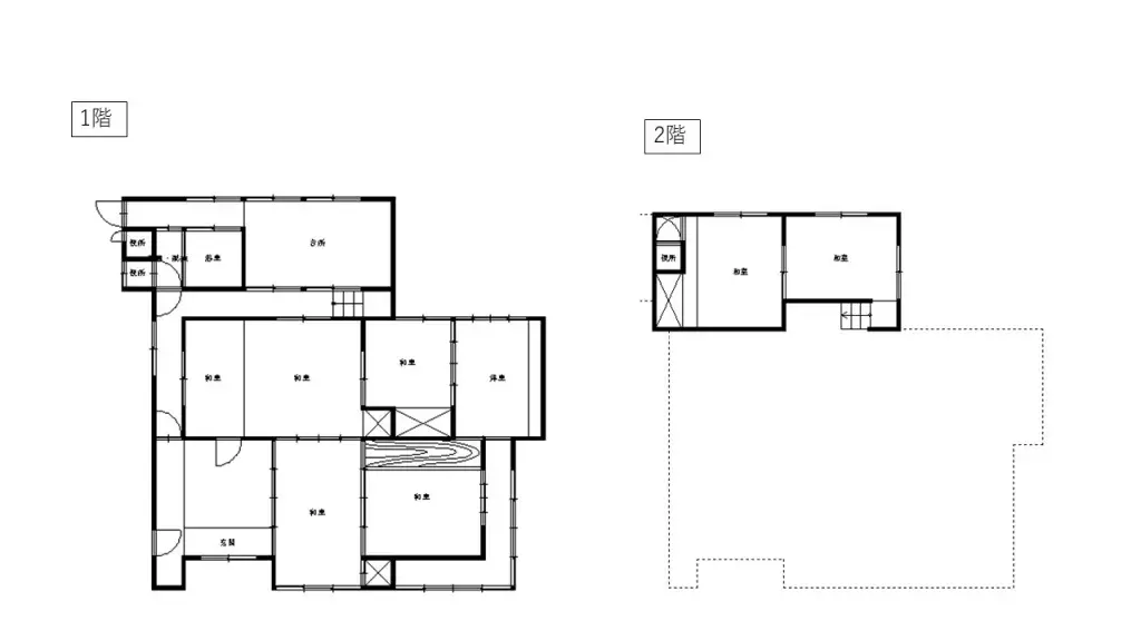
Located in Tamanoe, Saijo City, Ehime Prefecture, this property offers a functional 7DK layout, providing ample space for diverse living arrangements, suitable for families or those requiring multiple dedicated rooms. The main building covers a substantial 141.53 square meters of floor area, strateg...
Property details
YEAR BUILT
Unknown
Bedrooms
7
BUILDING MATERIAL
Wooden
BUILDING SIZE
141.53 sqm
LOT SIZE
625.3 sqm
LAND OWNERSHIP
Freehold
ZONING
Residential
FLOOR
—
PARKING SPACE
—
MINPAKU LIKELIHOOD
Unsure
Nearest station
Airport
Onsen
Supermarket
Conveni
Hospital / Clinic
Floorplan

Source:View original listing
Loading...
Est. Total (incl. fees): $62,319
2 views
Available
...
