






Available
4DK Property Iyo City Ehime Prefecture
Loading...
Est. Total (incl. fees): $15,016
21 views
1 favorite
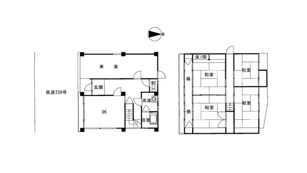
This 4DK detached house is located in Nakayama-cho, Iyo City, Ehime Prefecture, offering a residential environment. Built in 1982 with wood-reinforced concrete, the property has a total floor area of 131.57 square meters and a corresponding land area of 131.57 square meters. This provides ample spac...
Property details
YEAR BUILT
1982
Bedrooms
4
BUILDING MATERIAL
Other wood-reinforced concrete
BUILDING SIZE
131.57 sqm
LOT SIZE
131.57 sqm
LAND OWNERSHIP
Freehold
ZONING
Residential
FLOOR
2
PARKING SPACE
—
MINPAKU LIKELIHOOD
Unsure
Nearest station
Airport
Onsen
Supermarket
Conveni
Hospital / Clinic
Floorplan

Source:View original listing
Loading...
Est. Total (incl. fees): $15,016
21 views
1 favorite
Available
...
