












Available
6DK Property Iyo City Ehime Prefecture
Loading...
Est. Total (incl. fees): $60,928
4 views
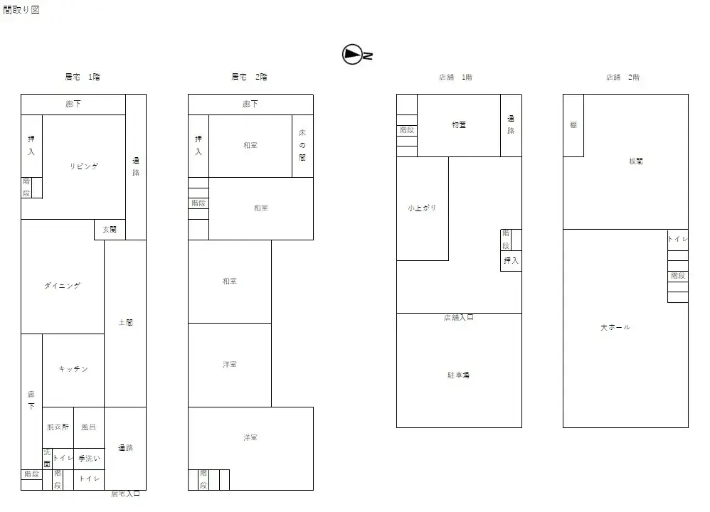
This expansive 6DK detached house is situated in Nadacho, Iyo City, Ehime Prefecture, offering a significant footprint for various applications. Constructed in 1932, the property features a robust building structure, utilizing a combination of wood and light steel frames, indicative of its era's con...
Property details
YEAR BUILT
1932
🔴
Pre-1981 seismic standard
Bedrooms
6
BUILDING MATERIAL
Other wood, lightweight steel frame
BUILDING SIZE
339 sqm
LOT SIZE
340.04 sqm
LAND OWNERSHIP
Freehold
ZONING
Residential
FLOOR
2
PARKING SPACE
—
MINPAKU LIKELIHOOD
Unsure
Nearest station
Airport
Onsen
Supermarket
Conveni
Hospital / Clinic
Floorplan

Source:View original listing
Loading...
Est. Total (incl. fees): $60,928
4 views
Available
...
